Armstrong-Withworth AW-52G

DONNÉES GÉNÉRALES
Année du premier vol
(ou de design, si seul projet)
1944
Pays Angleterre
Designer(s) ARMSTRONG, & WITHWORTH
Premier constructeur Armstrong-Withworth Aircraft Ltd, Baginton, Coventry
Type d'appareil Aile volante
Fonction Expérimental

SPÉCIFICATIONS TECHNIQUES
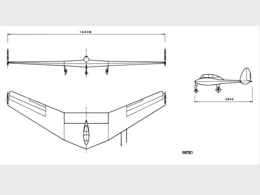
Envergure 16.46 m
Longueur 5.89 m
Hauteur 2.54 m
Allongement6.58
Surface alaire41.14 m2
Profil aileNACA 65-3-220
Masse à vide2017 kg
Masse maxi2720 kg
Charge alaire65.7 kg/m2
Vitesse mini--
Vitesse maxi402 km/h
Finesse maxi
Taux de chute mini--
Nb sièges2
StructureConstruction bois, revêtement en Plymax (contreplaqué et feuille d'alliage léger (Alclad).

[Photo d'origine inconnue]
[British gliders and sailplanes]

AUTRES INFORMATIONS

Constructeur(s)
ConstructeurConstruits
Armstrong-Withworth Aircraft Ltd, Baginton, Coventry1
Nombre total de constructions1
Infos techniques--
Histoire résuméeUn seul exemplaire construit, numéro de série RG324. Premier vol le 2 mars 1945. Après les essais, l'appareil fut abandonné à l'extérieur des bâtiments de la compagnie, jusqu'à ce qu'il soit brûlé au milieu des années 1960.
Liens personnalités Pas de personnalité associée.

SOURCES DOCUMENTAIRES

Liens WEBSite : 100 Jahre Nurflügel /A century of flying wings . Armstrong-Withworth AW-52G. (2009-10-28 JM)
Site : Nuricom (Klaus Niegratschka) . Plan 3 vues AW-52. (2011-04-12 CL)
Site : Nuricom (Klaus Niegratschka) . Plan 3 vues AW-52G. (2011-04-12 CL)
LivresBritish Gliders and Sailplanes 1922-1970
par ELLISON, Norman (1971) [p. 85, 243. Note + plan 3 vues + specs].
Quelle strane macchine volanti
par EVANGELISTI, Giorgio (2002) [p. 292-294. Texte + photo].
Autres sourcesVous avez dit ailes volantes ?, Yves Sargentini, Lettre d'Information Dédale n° 105, été 2013, p 5. Texte + photo + plan 3 vues + specs

MODÈLES RÉDUITS

Pas de plan ou kit référencé.
Fiche n° 1933 [Dernière mise à jour : 2015-03-03]