| DONNÉES GÉNÉRALES |
| Année du premier vol (ou de design, si seul projet) |
1933 |
| Pays | Allemagne |
| Designer(s) | LIPPISCH, Alexander |
| Premier constructeur | |
| Type d'appareil | Aile volante |
| Fonction | Expérimental |
| SPÉCIFICATIONS TECHNIQUES |
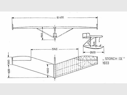
| Envergure | 10.4 m |
| Longueur | 2.92 m |
| Hauteur | 1.56 m |
| Allongement | -- |
| Surface alaire | -- |
| Profil aile | -- |
| Masse à vide | -- |
| Masse maxi | -- |
| Charge alaire | -- |
| Vitesse mini | -- |
| Vitesse maxi | -- |
| Finesse maxi | |
| Taux de chute mini | -- |
| Nb sièges | 1 |
| Structure | Bois et toile |
| Constructeur(s) |
| ||||||
| Infos techniques | Aile volante à ailes hautes avec un cockpit ouvert et un manche à balai suspendu. | ||||||
| Histoire résumée | Après le décès de Günther GROENHOFF durant le concours de la Wasserkuppe 1932, Alexander LIPPISCH poursuivit le développement des ailes volantes "Delta". Les essais étaient menés par le pilote "Bill" HUBERT. Mais ce dernier eut aussi un accident dont il réchappa. Cela conduisit Lippisch à conclure qu'il fallait un avion d'entraînement sans queue pour familiariser les pilotes avec leurs caractéristiques de vol avant de pouvoir poursuivre le développement des avions à ailes en flèche et en delta. C'est ainsi que la Storch IX fut donc conçue comme un planeur d'entraînement. Le pilotage de cette aile volante, testés par différents pilotes, ne présentait aucune difficulté particulière. | ||||||
| Liens personnalités | LIPPISCH, Alexander Martin (Allemagne) |
| Liens WEB | Site : 100 Jahre Nurflügel /A century of flying wings . Lippisch Storch IX [Lien rompu]. (2025-11-17 CL) Site : Lippisch Nurflügels . Storch IX. Texte + photos + plan 3 vues. (2025-11-17 CL) Site : Nuricom (Klaus Niegratschka) . Plan 3 vues [Lien rompu]. (2025-11-17 CL) |
| Livres | Ein Dreieck Fliegt par LIPPISCH, Alexander (1976) []. The delta wing, history and development par LIPPISCH, Alexander (1981) [p. 28-29. Texte + photo + plan 3 vues]. |
| Autres sources | Alexander Lippisch’ Storch IX, Bill & Bunny Kuhlman, RC Soaring Digest vol. 22 n° 4 avril 2005. Texte + photo + plan 3 vues |
Team J2mcL © 2003 -
- Pages optimisées pour Mozilla Firefox