Beatty B-6

DONNÉES GÉNÉRALES
Année du premier vol
(ou de design, si seul projet)
1981
Pays Afrique du Sud
Designer(s) BEATTY, Patrick James
Premier constructeur Performance Sailplanes, Patrick J. BEATTY (SA)
Type d'appareil Planeur
Fonction Expérimental

SPÉCIFICATIONS TECHNIQUES
Envergure 22 m
Longueur--
Hauteur--
Allongement--
Surface alaire--
Profil aileWortmann FX-05-H-126, à cambrure variable
Masse à vide--
Masse maxi--
Charge alaire--
Vitesse mini--
Vitesse maxi--
Finesse maxi
Taux de chute mini--
Nb sièges1
Structure--

[Pas de photo connue]
[ICAS]

AUTRES INFORMATIONS

Constructeur(s)
ConstructeurConstruits
Performance Sailplanes, Patrick J. BEATTY (SA)1
Nombre total de constructions1
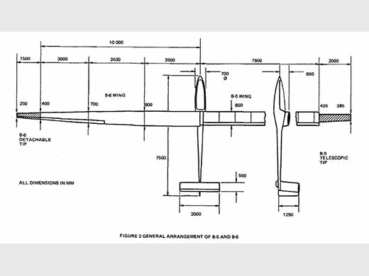
Infos techniquesThe B-6
Initially flown in 1981, the B-6 used the same fuselage as the last version of the B-5, and retained the pylon-mounted adjustable thickness wing. Very distinctive upswept wing tips were used, on a fixed 22 m wing span.
Version 2 of the B-6 finally dispensed with the adjustable thickness wing. Instead, the aft 40% of the wing skins were flexible, for camber adjustment. Very small (10 % of chord) ailerons were used. The wing structure consisted of an aluminium spar, with plywood ribs and aluminium skins. Although performance seemed quite good, the small ailerons resulted in inadequate feedback, which made the glider rather difficult to fly.
Histoire résumée--
Liens personnalitésBEATTY Patrick James (Afrique du Sud)

SOURCES DOCUMENTAIRES

Liens WEBSite : Google Groups . Note. (2016-11-13 CL)
Site : ICAS . Variable geometry airfoils as applied to the Beatty B-5 and B-6 sailplanes. Texte + plan 3 vues. (2016-11-13 CL)
LivresPas de livre référencé.

MODÈLES RÉDUITS

Pas de plan ou kit référencé.
Fiche n° 4228 [Dernière mise à jour : 2016-11-13]