Johl J-5

DONNÉES GÉNÉRALES
Année du premier vol
(ou de design, si seul projet)
2012
Pays Afrique du Sud
Designer(s) JOHL, Wilfred A. Theodore (Fritz)
Premier constructeur
Type d'appareil Planeur
Fonction Expérimental

SPÉCIFICATIONS TECHNIQUES
Envergure 16.25 m
Longueur 7.8 m
Hauteur--
Allongement--
Surface alaire--
Profil aile--
Masse à vide--
Masse maxi--
Charge alaire--
Vitesse mini--
Vitesse maxi--
Finesse maxi
Taux de chute mini--
Nb sièges1
Structure--

Modèle d'études du J-5 au 1/4, en vol [Technical Soaring, Vol. 32 n° 1, Jjanvier-mars 2012]
[Technical Soaring vol. 36 n° 2]

AUTRES INFORMATIONS

Constructeur(s)
ConstructeurConstruits
--
Nombre total de constructions--
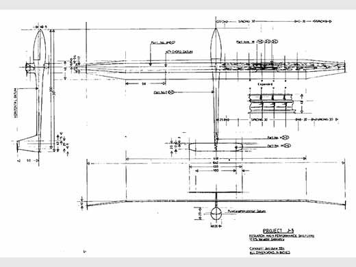
Infos techniquesPlaneur à ailes à géométrie variable. Empennage en T.
Histoire résumée--
Liens personnalitésJOHL Wilfred A. Theodore (Fritz) (Afrique du Sud)
Compléments docs

SOURCES DOCUMENTAIRES

Liens WEBSite : RC Groups . J5 - Quarter-scale Project. Note. (2016-11-15 CL)
Site : RC Groups . The cutting edge. Texte. (2016-11-15 CL)
Site : Fritz JOHL . Site biographique. (2016-11-15 CL)
Site : Soaring Society of South Africa . SAS Magazine, octobre 2011 [Lien rompu]. (2022-10-11 CL)
Site : OSTIV Archives . A Further Case for Variable Geometry. Technical Soaring Vol. 36, n° 2 avril-juin 2012 . (2022-10-11 CL)
Site : OSTIV Archives . The Substitute for Span: A 1000 km triangle in five hours. Technical Soaring Vol. 36, n° 1, janvier-mars 2012. (2022-10-11 CL)
LivresPas de livre référencé.
Autres sourcesLa saga des planeurs BJ, Lettre d'information Dédale n° 131, été 2022. Traduction d'un article de Charles Crosby, mai 1995.
The Cutting Edge, Cape Gliding Club Newsletter, février 2002 [Worcester, Western Cape, Afrique du Sud]
The Five Hour 1000km Triangle, par Peter Wooley & Fritz Johl, South African Soaring Magazine, 0ctobre 2011. Texte + 5 photos

MODÈLES RÉDUITS

Pas de plan ou kit référencé.
Fiche n° 4231 [Dernière mise à jour : 2022-10-11]